Contact:
Contact Dev: 61 414268553
Email: dev(at)efloorplan.com.au
ABN: 46 103 723 528
Address:2A Delphine Ave Dianella WA 6059
Frequent Ask Questions (FAQ):
Q1: How much do you charge?
Q2: I don't have a scanner, how do I send the floor plan to you?
Q3: Colour foor Plan or black and white floor plan, which is better?
Q4: I have A3 size floor plan, how can I scan it, I have only A4 size scanner ?
Q5: I have a floor plan can you calculate the area of each room ?
Q6: I have a floor plan can you calculate the ?
Q7: What is the recommended file size for a floor plan ?
Q1:How much do you charge?
We charge based on size of the house. Sometime an unreadable (old prints) existing floor plan without details need more time. Some projects have lot of renovation not captured in existing plans. Therefore the charges vary for each project. For an estimate please email your details along with the floor plan or hand sketch and you will find our estimates are very competitive.
Q2: I don't have a scanner, how do I send the floor plan to you?
A: You have 2 options
1. Post a photos copy to us by mail or
2. Email digital photos of the Floor plans from your phone camera or digital camera
.
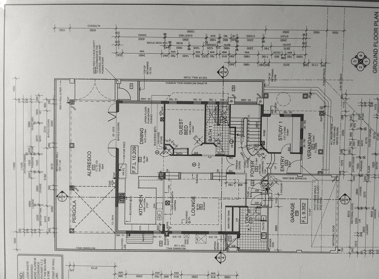
Q3: Tips on taking photos
To get a good quality floor plan image do the following -
1.Place the floor plan on a vertical surface at your eve level.

2. See to that there is sufficient light in the room.
3. Focus the image on to the camera,
4. Align the sides of the viewfinder with any horizontal or vertical line of the floor plan and take a picture.
5. Take two or three pictures.
6. Visually check the quality of the pictures, for sharpness, clarity and alingment.
7.Once you are satisfied email the image to us.
Acceptable Quality - Image below is aligned, in focus, all details are clear and all room are visible.

Bad Quality - Image below is not aligned (vertical and horizontal lines are at an angle)

Bad Quality - Image below is out of focus.

So, before you email the images please check the quality.
Q4: Colour foor Plan or black and white floor plan, which is better?
Colours help differentiate important areas with non functional areas of a layout. If there is a printed brochure to be done and you are constrained for budget, a black and white brochure will cost less than a coloured brochure. But a coloured image will be visually more appealing. We use the best practices in Graphic Design to ensure that the colours are subtle and informative at the same time without distraction.

Above Image - Black and white floor plan

Above image - Colour floor plan
Q5: I have A3 size floor plan, how can I scan it,I have only A4 size scanner ?
If you are in Australia then visit Office Works and they can scan the floor plan for you
Visit http://www.officeworks.com.au/print/print-and-copy/print-services/scan-your-document
OR
Fold the A3 drawing into half to get A4 size, Scan the 2 halves of the drawing to create two images.
Email each file to us and we will recreate one floor plan from the two separate scanned images.
Q6:I have a floor plan can you calculate the area?
Yes, we can provide you this service at an additional cost. The process involves importing the file into a CAD software, tracing the rooms or the blocks under question and extracting the area from CAD software.
However please note that the area will be approximate and depend on the quality of the scanned floor plan from paper. However it will be more accurate than actual measuring the area using ruler and then calculating the area.
Q7: What is recommended size of the floor plan?
The size of the floor plan depend on the application & the size of image.
A) If you are using the file on internet ( WEB) then the recommended file size for A4 paper size will be max 2.5MB at 96dpi
B> If you need it for PRINT Application then the file size will vary based on the paper size
A4 at 200dpi will be max 10MB
A3 at 200dpi will be max 20MB
A2 at 200dpi will be max 40MB